
Buying property in Monaco
How to buy an apartment in Monaco?
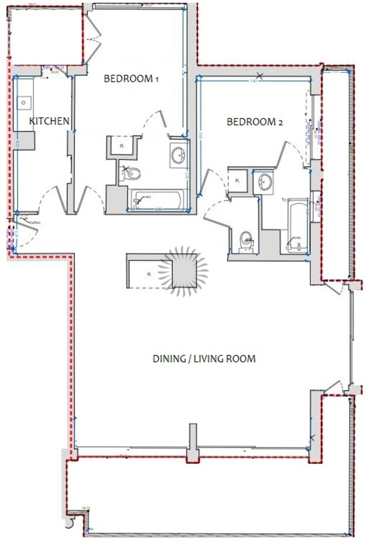
In the prestigious Riviera Palace residence, discover this luxurious 3-room apartment with an exceptional panoramic view of the Casino de Monte-Carlo and the sea.
Ideally located a few steps from the Carré d'Or, the apartment enjoys an exceptional location in the heart of Monte-Carlo, in the immediate vicinity of the Casino, the One Monte-Carlo and its luxury boutiques, renowned restaurants and emblematic palaces of the Principality.
This document does not form part of any offer or contract. All measurements, areas and distances are approximate. The information and plans contained herein are believed to be correct, however, their accuracy is not guaranteed. Pictures only show certain parts of the property at the time they were taken. This offer is available subject to any sale, removal of sale, change of price or any other conditions, without prior notice.